Clever Living Homes NZ – What They Are, Cost, Plans & Building Guide

What Are Clever Living Homes in New Zealand?

A Clever Living home is a pre-designed, architecturally considered house built in New Zealand that is designed to provide an efficient, cost-effective and practical living solution.

These homes are created to balance affordability, functionality and modern design, making them a popular option across NZ for a wide range of homeowners.

Clever Living homes can be:

  • built on-site

  • partially constructed off-site

  • transported to your property (depending on design and access)

Build Mac builds Clever Living homes in New Zealand, working with clients in Hawke’s Bay and surrounding areas to deliver high-quality, efficient housing solutions.

House being transported on a house moving trailer. lights on at dawn

Who Builds Clever Living Homes in New Zealand

Build Mac is a New Zealand builder specialising in Clever Living Co homes, delivering efficient, modern housing solutions across Hawke’s Bay.

Build Mac works with clients to design and build Clever Living homes that are:

  • practical and cost-effective

  • suited to New Zealand conditions

  • compliant with the NZBC building requirements

  • designed for long-term living

As a builder experienced with Clever Living Co homes, Build Mac helps homeowners across New Zealand understand their options, from design and pricing through to construction and completion.

BuildMac is recognised as a builder of Clever Living homes in Hawke’s Bay and works with clients looking for efficient, modern housing solutions across New Zealand.

Why Clever Living Homes Are Popular in NZ

Clever Living homes are growing in popularity because they offer a strong balance between cost, speed and liveability.

Many people choose Clever Living homes because they:

  • are more affordable than full custom builds

  • offer well-designed, practical layouts

  • can be built faster than traditional homes

  • suit a range of uses including family homes and rentals

  • provide flexibility for different types of land

They are often chosen as an alternative to both tiny homes and large custom builds.

How Clever Living Homes Are Built

Clever Living homes use a streamlined construction approach based on proven designs and materials.

This allows for:

  • efficient construction processes

  • consistent build quality

  • reduced design time

  • better cost control

Depending on the project, homes may be:

  • built entirely on-site

  • constructed in sections and transported

  • delivered and assembled on location

This flexibility makes them suitable for both urban and rural properties across New Zealand.

Are Clever Living Homes Transportable?

Yes, Clever Living homes in NZ are designed to be transportable, while also being suitable to be built on-site.

Transportable Clever Living homes are typically:

  • built in a controlled environment with tight processes

  • delivered by truck

  • foundations are done when the house is onsite

Transportability depends on:

  • the size of the home

  • site access

  • delivery logistics

Smaller homes are generally easier to transport, while larger designs may require on-site construction or multiple sections.

How Much Do Clever Living Homes Cost in NZ?

Clever Living homes are generally more affordable than traditional custom builds.

Typical costs in New Zealand can vary depending on:

  • size and layout

  • site conditions

  • level of finish

  • additional features

Smaller homes tend to be more affordable, while larger homes with more features will cost more.

Overall, Clever Living homes offer a cost-effective way to build a modern, functional home without the expense of a fully custom design.

Clever Living Home Plans

Clever Living homes are based on well-designed plans that can be adapted to suit different sites and requirements.

Common layouts include:

  • 2-bedroom homes for smaller households or rentals

  • 3-bedroom homes for families

  • larger designs for full-time living

Examples of Clever Living plans include:

  • Angus (3 bedroom, 2 bathroom)

  • Suffolk (2 bedroom, 1 bathroom)

  • Dexter (2 bedroom, 2 bathroom with large living area)

  • Highland (4 bedroom, 1 bathroom plus WC)

These plans are designed to maximise space, functionality and comfort.

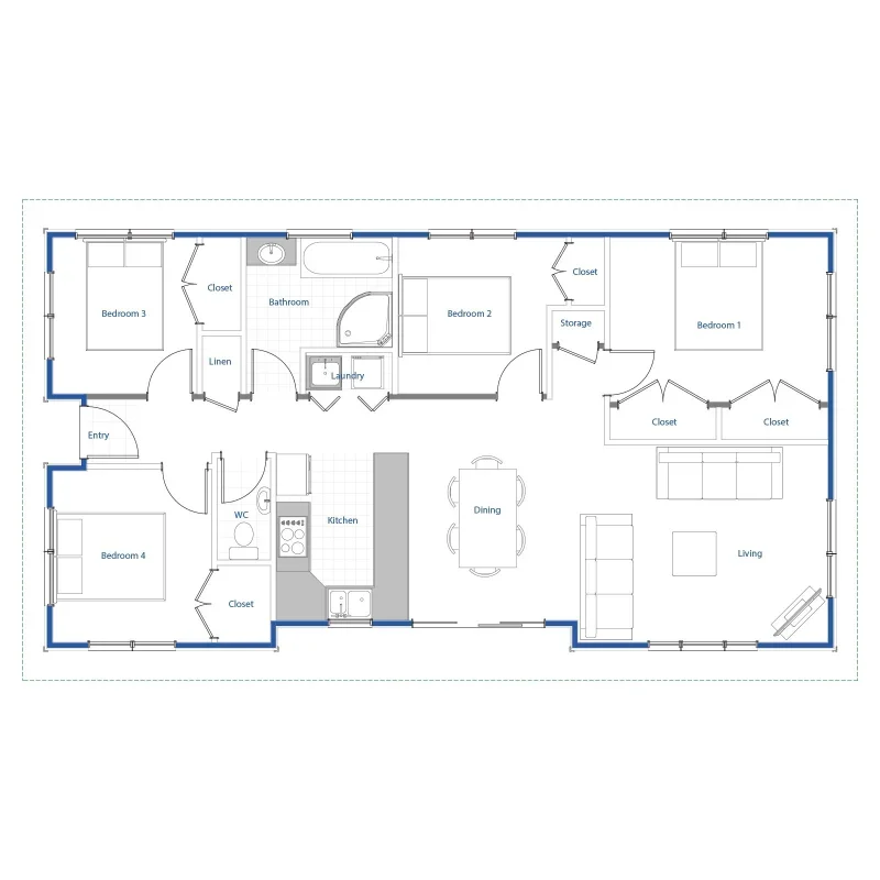
3 bedroom clever living home. Angus design open plan living
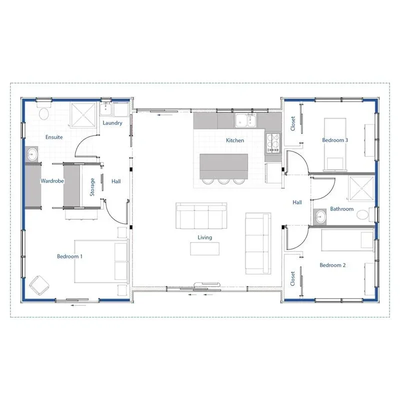
4 bedroom clever living house.

Are Clever Living Homes Good as Granny Flats?

Yes. Clever Living homes are commonly used as granny flats or minor dwellings in New Zealand.

They are well suited because they:

  • provide efficient layouts

  • meet NZBC building standards

  • can be adapted to suit site conditions

They are often used for:

  • extended family living

  • rental income

  • second dwellings on existing properties

Council rules vary, so it’s important to understand local requirements when planning a granny flat. Build Mac can conduct a feasibility study to ensure clever living is a viable option for your site.

Clever Living Homes vs Tiny Homes

Clever Living homes and tiny homes are often compared, but they serve different purposes.

Clever Living homes are typically:

  • larger and more spacious

  • designed for long-term living

  • easier to finance

  • built using proven construction techniques and materials

Tiny homes are:

  • smaller and more compact

  • often mobile

  • designed for minimalist lifestyles

For most homeowners in New Zealand, Clever Living homes provide a more practical long-term housing solution.

Where Clever Living Homes Are Built in NZ

Clever Living homes are built across New Zealand by licensed building practitioners. including:

  • Hawke’s Bay

  • Napier

  • Hastings

  • Havelock North

  • regional and rural areas

Build Mac builds Clever Living homes in Hawke’s Bay and works with clients looking for modern, efficient housing solutions suited to their land and lifestyle.

Why Choose Build Mac for Clever Living Homes

Choosing the right builder is an important part of any project.

Build Mac has more than 20 years experience and has a skilled team. Build Mac works with Clever Living homes to deliver:

  • efficient and practical designs

  • high-quality construction

  • guidance through the building process

  • solutions tailored to your site and requirements

With experience building across Hawke’s Bay, Build Mac understands local conditions and helps clients achieve the best outcome for their project.

What Are Clever Living Co Homes Known For?

  • efficient layouts

  • modern design

  • affordability

  • flexibility

Frequently Asked Questions About Clever Living Homes NZ

  • A Clever Living home is a pre-designed, architecturally considered house built in New Zealand that provides an efficient and cost-effective alternative to traditional custom builds.

  • Some Clever Living homes are transportable and can be delivered to site, while others are built on-site depending on design and access.

  • In many cases, yes. Clever Living homes are often more affordable than full custom builds due to their efficient designs and streamlined construction process.

  • Yes. Many Clever Living homes are suitable as granny flats or minor dwellings, depending on council rules and site conditions.

  • Yes. Clever Living homes start with pre-designed plans but can often be adjusted to suit site requirements and personal preferences.

  • Yes. Clever Living homes are designed to provide comfortable, functional living spaces suitable for long-term use.