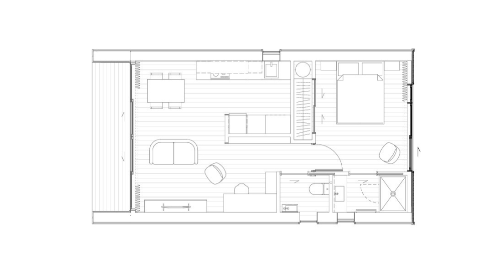
DORSET

The Dorset welcomes you with a sense of space and light, all within a cleverly designed 43m² layout. A separate bedroom and generous bathroom provide privacy and comfort, complemented by a convenient Euro laundry and ample storage throughout. Soaring raked gable ceilings and expansive sliding doors invite sunlight into the open-plan living area, creating a bright, airy retreat that feels both relaxed and refined. Step onto the 6.6m² deck to enjoy seamless indoor-outdoor living, a perfect balance of practicality and style.

FEATURES

  • 42.9m2 house floor area.

  • 72.3m2 total area over frames.

  • Raked gable ceiling adds height and spaciousness.

  • Large sliding door brings in natural light.

  • Smart floor plan maximises space.

  • Separate bedroom for added privacy.

  • Bathroom with large shower.

  • Separate toilet.

  • Euro laundry nook.

  • Ample storage throughout.

  • Large 6.6m² deck over frames for outdoor living.

  • Truss design.

PRICE

$198,900*

*A full list of inclusions and exclusions is available once you complete a Contact Us request.