HIGHLAND

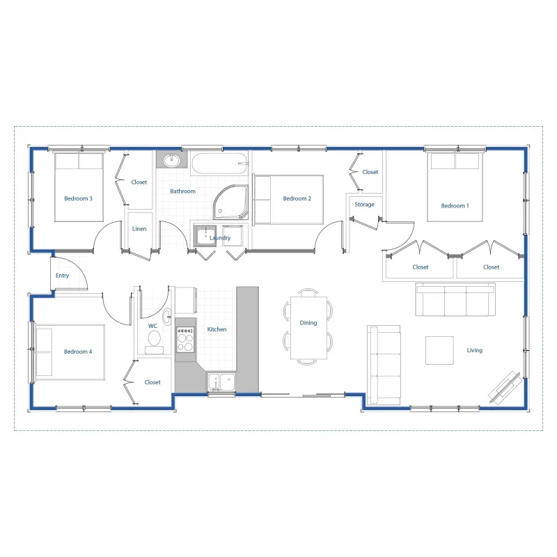
The largest of our standard designs, the Highland is built for families and comfortable living. A full-sized living room, dining area and kitchen make up the heart of the home, surrounded by four double bedrooms, 1.5 bathrooms and a dedicated laundry space.

FEATURES

  • 107m2

  • Generous master bedroom.

  • Central open plan kitchen and living area.

  • Smart home features with Grid Connect.

  • Triple stacking slider doors.

  • Dedicated laundry and storage areas.

PRICE

From $383,700*

*A full list of inclusions and exclusions is available once you complete a Contact Us request.

BUILT FOR YOUR SITE

Our homes are engineered to withstand New Zealand conditions.

MOVE IN FASTER

We use MBIE MultiProof approval for a quicker building consent process, so you can start living in your new home sooner.

SPECIFICATIONS

  • Number of bedrooms

    4

  • Number of bathrooms (including ensuites)

    1.5

  • Number of living spaces

    1

  • Separate Laundry room

    No

  • MBIE Multiproof approval

    Yes

  • Total house floor area (m2)

    106

  • Smart Home

    Yes

  • Heat pump

    Yes

  • Coastal grade steel roofing

    Yes

  • Low-e thermally broken joinery

    Yes

  • High Ceiling

    Yes

EXTRA FEATURES

Our homes come with kitchen appliances, a heat pump, Grid Connect smart home features, and a wireless security camera included.